-
外表環氧樹脂噴涂處理
外表環氧樹脂噴涂處理、噴涂厚度大于250um。
-
焊接方式為滿焊
所有焊接均為滿焊,確保密封性。
-
內壁效圓處理
成型后做內壁效圓處理。
-
同等口徑重量重于其他廠家
法蘭尺寸符合GB/T 12465-2002標準,同等口徑重量重于其他廠家。
-
每個環節層層質檢
從毛坯到成品包裝出廠每個環節層層質檢。
-
-
-
-
產品優點
產品介紹
C2F雙法蘭傳力接頭是泵、閥門,管道等設備與管道連接的新產品,安裝時調節產品兩端與管道或法蘭的安裝長度,安裝和焊接完畢后,對角依次均勻擰緊壓蓋螺栓,使其成為一個整體,并有一定的位移量??沙惺芄芫€的軸向壓力。這樣方便安裝維修時能根據現場尺寸進行調整,在工作時可以把軸向推力傳遞至整個管道,不僅提高工作效率,而且對泵、閥門等管道設備起到一定保護作用。
產品參數

C2F 雙法蘭傳力接頭參數信息
閥門執行標準 | 名稱 | 設計及制造 | 結構長度 | 試壓標準 | 法蘭尺寸 | ||||||||
參照標準 | GB/T 12465-2002 | GB/T 12465-2002 | GB/T 12465-2002 | GB/T 12465-2002 | |||||||||
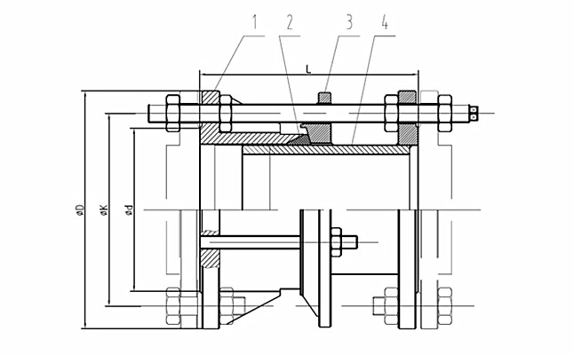
主要零部件信息 | 名稱 | 1-本體 | 2-密封圈 | 3-壓蓋 | 4-限位伸縮管 | ||||||||
材質 | Q235 | 三元乙丙橡膠 EPDM | Q235 | Q235-A | |||||||||
尺寸信息 | 公稱尺寸 | PN6/10/16 | PN6 | PN10 | PN16 | ||||||||
DN | NPS(英寸) | L | Δ | ΦD | ΦK | Φd | ΦD | ΦK | Φd | ΦD | ΦK | Φd | |
65 | 2 1/2'' | 200 | 20 | 160 | 130 | 110 | 185 | 145 | 122 | 185 | 145 | 122 | |
80 | 3'' | 200 | 20 | 190 | 150 | 128 | 200 | 160 | 138 | 200 | 160 | 138 | |
100 | 4'' | 200 | 20 | 210 | 170 | 148 | 220 | 180 | 158 | 220 | 180 | 158 | |
125 | 5'' | 200 | 20 | 240 | 200 | 178 | 250 | 210 | 188 | 250 | 210 | 188 | |
150 | 6'' | 200 | 20 | 265 | 225 | 202 | 285 | 240 | 212 | 285 | 240 | 212 | |
200 | 8'' | 200 | 20 | 320 | 280 | 258 | 340 | 295 | 268 | 340 | 295 | 268 | |
250 | 10'' | 200 | 20 | 375 | 335 | 312 | 395 | 350 | 320 | 405 | 355 | 320 | |
300 | 12'' | 220 | 25 | 440 | 395 | 365 | 445 | 400 | 370 | 460 | 410 | 378 | |
350 | 14'' | 220 | 25 | 490 | 445 | 415 | 505 | 460 | 430 | 520 | 470 | 438 | |
400 | 16'' | 220 | 25 | 540 | 495 | 465 | 565 | 515 | 482 | 580 | 525 | 490 | |
450 | 18'' | 220 | 25 | 595 | 550 | 520 | 615 | 565 | 532 | 640 | 585 | 550 | |
500 | 20'' | 220 | 25 | 645 | 600 | 570 | 670 | 620 | 585 | 715 | 650 | 610 | |
600 | 24'' | 240 | 25 | 755 | 705 | 670 | 780 | 725 | 685 | 840 | 770 | 725 | |
700 | 28'' | 240 | 25 | 860 | 810 | 775 | 895 | 840 | 800 | 910 | 840 | 795 | |
800 | 32'' | 350 | 30 | 975 | 920 | 880 | 1015 | 950 | 905 | 1025 | 950 | 900 | |
900 | 36'' | 350 | 30 | 1075 | 1020 | 980 | 1115 | 1050 | 1005 | 1125 | 1050 | 1000 | |
1000 | 40'' | 350 | 30 | 1175 | 1120 | 1080 | 1230 | 1160 | 1110 | 1255 | 1170 | 1115 | |
1200 | 48'' | 370 | 30 | 1405 | 1340 | 1259 | 1455 | 1380 | 1330 | 1485 | 1390 | 1330 | |
1400 | 56'' | 370 | 30 | 1630 | 1560 | 1510 | 1675 | 1590 | 1535 | 1685 | 1590 | 1530 | |
1600 | 64'' | 380 | 30 | 1830 | 1760 | 1710 | 1915 | 1820 | 1760 | 1930 | 1820 | 1750 | |
1800 | 72'' | 380/400 | 30 | 2045 | 1970 | 1920 | 2115 | 2020 | 1960 | 2130 | 2020 | 1950 | |
2000 | 80'' | 400 | 30 | 2265 | 2180 | 2125 | 2325 | 2230 | 2170 | 2345 | 2230 | 2150 |
