-
精密鑄造
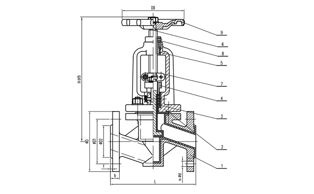
采用精密鑄造工藝,閥體材質性能符合國家標準;
-
全包襯氟
閥體采用適合襯里工藝要求的結構,直接與介質接觸的閥體及內件,全部包襯氟塑料;
-
FEP/FEP密封
密封副為FEP/FEP或其它材料組合,摩擦系數小,啟閉力矩低;
-
密封性好
填料采用PTFE材質,密封性能好,維修更換方便;
-
使用安全
閥瓣與閥桿設計為一體結構,可以防止由管路壓力波動造成內件沖出閥體的可能有性,結構緊湊,使用安全。
-
-
-
-
產品優點
產品介紹
襯氟截止閥是采用氟塑料襯里層的截止閥,具有極高的化學穩定性,適用于強腐蝕性化學介質;襯氟截止閥,具有結構緊湊、啟閉靈活、耐腐蝕性能強,行程短等優點,被廣泛應用在石油、化工等管路系統做截斷介質用。
產品參數

名稱 | 設計及制造 | 結構長度 | 試壓標準 | 法蘭標準 |
參照標準 | GB/T 12235 | GB/T 12221 | GB/T 13927 | HG/T 20592 |
名稱 | 閥體 | 閥板 | 閥桿 | 閥蓋 |
材質及說明 | WCB+F46 | WCB+F46 | 2Cr13 | WCB |
DN | NPS | L | ΦD | ΦD1 | n-Φd |
15 | 1/2'' | 130 | 95 | 65 | 4-14 |
20 | 3/4'' | 150 | 105 | 75 | 4-14 |
25 | 1'' | 160 | 115 | 85 | 4-14 |
32 | 1 1/4'' | 180 | 140 | 100 | 4-18 |
40 | 1 1/2'' | 200 | 150 | 110 | 4-18 |
50 | 2'' | 230 | 165 | 125 | 4-18 |
65 | 2 1/2'' | 290 | 185 | 145 | 8-18 |
80 | 3'' | 310 | 200 | 160 | 8-18 |
100 | 4'' | 350 | 220 | 180 | 8-18 |
125 | 5'' | 400 | 250 | 210 | 8-18 |
150 | 6'' | 480 | 285 | 240 | 8-22 |
200 | 8'' | 495 | 340 | 295 | 12-22 |
250 | 10'' | 730 | 405 | 355 | 12-26 |
300 | 12'' | 850 | 460 | 410 | 12-26 |
